weitere Bilder - Immobilienbüro RÄTTIG

Attraktive, hochwertige und großzügige 2 bis 3-Zimmer-Wohnungen teils mit Garte ...

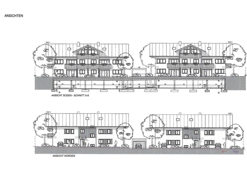
  • Ansichten Süd u. Nord
  • Wohnung 1   Hs. 1, EG
  • Wohnung 2   Hs. 1, EG
  • Wohnung 2   Hs. 1, KG
  • Wohnung 3   Hs. 1, OG
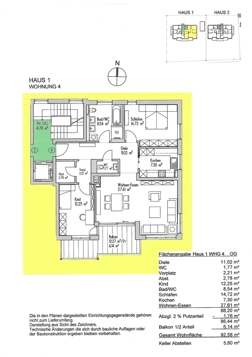
  • Wohnung 4   Hs. 1, OG
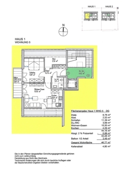
  • Wohnung 5   Hs. 1, DG
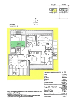
  • Wohnung 6 Hs. 1, DG
  • Wohnung 7   Hs. 2, EG
  • Wohnung 7   Hs. 2, KG
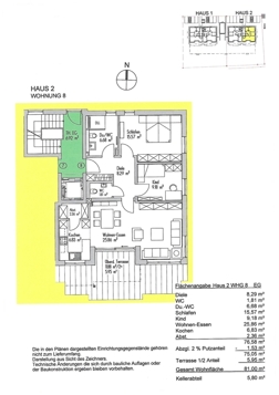
  • Wohnung 8   Hs. 2, EG
  • Wohnung 9   Hs. 2, OG
  • Wohnung 10   Hs. 2,  OG
  • Wohnung 11 Hs.2, DG
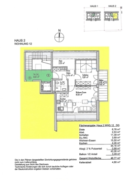
  • Wohnung 12   Hs. 2, DG
  • Ansichten Ost u. West
  • KG, Tiefgarage
  • Stellplätze

<< Zurück