Mietangebote
Attraktive, hochwertige und großzügige 2 bis 3-Zimmer-Wohnungen teils mit Garte ...
weitere Bilder | Grundrisse | Karte | Kontakt
| Vermarktungsart | Miete |
| Objektart | Wohnung |
| PLZ | 82054 |
| Ort | Sauerlach |
| Land | Deutschland |
| Regionaler Zusatz | Sauerlach |
| Währung | € |
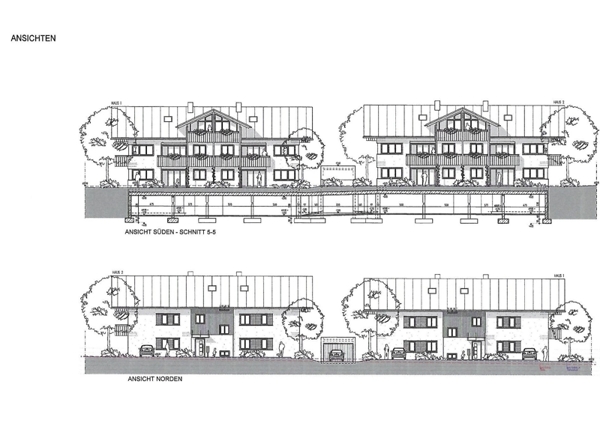
Die attraktiven, qualitativ hochwertigen Neubau-Wohnungen (Erstbezug!) befinden sich in zwei architektonisch sehr ansprechenden 6-Parteien-Häusern. Alle vier Ebenen (KG, EG, OG u. DG) sind schwellenfrei begehbar. Mit Personenaufzug vom Kellergeschoss (Tiefgarage) bis zum Dachgeschoss.
Die grundsolide Ziegelbauweise (36,5 cm Poroton-Ziegel), meisterhafte Ausführung der Gewerke, die hochwertige Ausstattungsqualität sowie die durchdachten Grundrisse ermöglichen angenehmes, entspanntes Wohnen auf höchstem Niveau.
Die jeweiligen Balkone und Terrassen bieten viel Platz und laden zum Verweilen ein.
Es kann von einer Bezugsfertigkeit zum 01.09.2019, teilweise etwas früher ausgegangen werden.
Da die Endabnahme noch nicht erfolgt ist, liegt ein „vorläufiger“ Energieausweis (Bedarfsausweis) vor. Demnach beträgt der Endenergiebedarf des Gebäudes 37 kWh/(m².a), Effizienzklasse A.
Lage:Leben im Süden Münchens zwischen der „Weltstadt mit Herz“ und den Alpen. Hier in Sauerlach stimmt die Infrastruktur und der Freizeitwert.
Mit dem Kfz erreicht man in ca. 30 Minuten die Münchner Innenstadt, etwa ebenso so lange benötigt man in die Berge oder z. B. zum Starnberger See. Auch der Autobahnanschluss zur A 995 und A8 ist schnell erreicht und man hat über das nahe Autobahnkreuz-München-Süd Zugang zu allen Richtungen.
Diese neuen Architektenhäuser liegen auf einem schönen großen Grundstück im westlichen Ortsgebiet von Sauerlach. In gut 10 Minuten erreicht man zu Fuß die S-Bahn oder man nimmt bequem den Bus, der fast vor dem Haus hält und in einer Fahrzeit von ca. 4 Minuten den Bahnhof erreicht.
Sauerlach bietet eine sehr gute Infrastruktur mit vielfältigen Einkaufsmöglichkeiten, Restaurants, Arztpraxen, Banken und Dienstleistern. Selbstverständlich gibt es mehrere Kindergärten und auch eine Grundschule ist am Ort. Weiterführende Schulen sind mit der S-Bahn problemlos in den Nachbarorten (z. B. Oberhaching, Taufkirchen oder Holzkirchen) erreichbar.
Ausstattung:Die schönen Treppenhäuser sind mit hellem Naturstein (Jura-Marmor) belegt und verfügen über guten Schallschutz.
Alle Wohnräume werden mit edlem Parkett in Eiche geölt ausgestattet. In den Küchen und Bädern werden großformatige Bodenfliesen (Feinsteinzeug) verlegt. Diese sind in anthrazit gehalten und bringen in den Bädern einen tollen Kontrast zu den weißen Wandfliesen und Sanitärobjekten. Die Duschen sind bodengleich und angenehm groß.
Alle Räume werden einzeln regelbar mit Fußbodenheizung beheizt. In den Bädern gibt es zusätzlich Handtuchtrockner mit Elektroanschluss. Die zentrale Wärmeerzeugung erfolgt mittels einer Gas-Brennwert-Anlage, die durch thermische Sonnenkollektoren unterstützt ist.
Sämtliche Wohnungen sind mit sehr hochwertigen Holz-Alu-Fenstern ausgestattet. Die Fenster im EG und OG verfügen zudem über elektrische Außenrollläden, wie auch die Dachflächenfenster zur Südseite, letztere sind mittels Fernbedienung steuerbar.
Die edle Ausstattung wird durch hochwertige weiße Holztüren mit Edelstahlgarnituren abgerundet. Glaseinsätze in den Wohnzimmertüren sorgen für natürliches Licht in den Dielen.
Selbstverständlich sind in allen Räumen ausreichend Steckdosen als auch Anschlussdosen zur Medienversorgung vorhanden.
Die architektonisch sehr durchdacht und geschickt geplanten Grundrisse ermöglichen sehr gute, Einrichtungsmöglichkeiten. Einige Wohnungen verfügen zudem über praktische, separate Abstellräume bzw. Speisekammern. In den DG-Wohnungen gibt es zusätzlichen Stauraum in sog. “Kriechspeichern“.
Sonstige Angaben:Zu jeder Wohnung gehört je ein Außenstellplatz sowie ein Tiefgaragenstellplatz. Die vier größten Wohnungen bieten jeweils sogar einen weiteren Stellplatz.
Die Tiefgarage bietet ausschließlich vollwertige, geräumige Stellplätze (keine Duplex). Bemerkenswert ist zudem der gute Schnitt der Tiefgarage, der einfaches Rangieren ermöglicht. Selbstverständlich erfolgt die Öffnung der Tiefgarage bequem mit Fernbedienung, die Einfahrthöhe beträgt 2 Meter.
Zu jeder Wohnung gehört ein eigenes Kellerabteil mit Stromanschluss. Jedes Haus bietet im KG einen Waschraum, in dem für jede Wohnung ein separater Wasser- und Stromanschluss zur Aufstellung von Waschmaschine und Trockner zur Verfügung steht. In einigen Wohnungen gibt es zusätzlich einen Waschmaschinenanschluss im Bad.
Zur gemeinschaftlichen Nutzung gibt es je Haus einen ausreichend dimensionierten Raum zur Einstellung von Kinderwägen und Fahrrädern.
Die vier Wohnungen im Erdgeschoss verfügen jeweils über einen Gartenanteil mit ca. 110 m² (Ausrichtung Süd) zur eigenen Nutzung. Zwei dieser wunderschönen Garten-Wohnungen haben jeweils einen Hobbyraum und Zugang zum Abstellraum im Keller mit direkter Verbindungstreppe zur Wohnung.
Einzelheiten zu den Wohnungen finden Sie auf unserer Homepage im Exposé zum jeweiligen Objekt.
Kontakt: Hartmut DeglmannImmobilienbüro RÄTTIG
Tel.: 089 / 90 15 75 59
Mail: hd@immobilienbuero-raettig.de
