Grundrisse - Immobilienbüro RÄTTIG

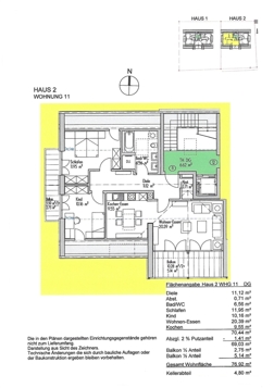
3-Zimmer-Wohntraum im Dachgeschoss, Wohn./-Nfl. 96,10 m², in Sauerlach

  • Wohnung 11 Hs.2, DG

<< Zurück