Grundrisse - Immobilienbüro RÄTTIG

Attraktiv, hochwertig und großzügig, 2,5-Zimmer-Wohnung in Sauerlach

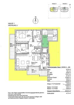
  • Wohnung 3 Hs. 1, OG

<< Zurück