Grundrisse - Immobilienbüro RÄTTIG

Attraktiv, hochwertig und großzügig, 3-Zimmer-Wohntraum im Dachgeschoss, W-Nfl. ...

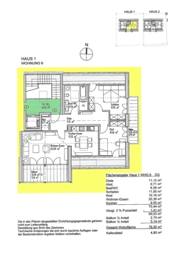
  • Wohnung 6 Hs. 1, DG

<< Zurück