Grundrisse - Immobilienbüro RÄTTIG

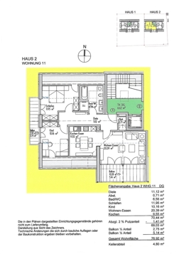
Attraktiv, hochwertig und großzügig, 3-Zimmer-Wohntraum im Dachgeschoss, W-Nfl. ...

  • Wohnung 11 Hs.2, DG

<< Zurück