Grundrisse - Immobilienbüro RÄTTIG

Attraktiv, hochwertig und großzügig 2,5-Zimmer-Gartenwohnung in Sauerlach

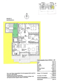
  • Wohnung 8 Hs. 2 EG

<< Zurück