Grundrisse - Immobilienbüro RÄTTIG

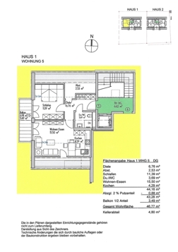
Attraktiv und hochwertig, wunderschöne 2-Zimmer-Dachgeschoss-Wohnung W-Nfl. 60,0 ...

  • Wohnung 5 Hs. 1, DG

<< Zurück