Grundrisse - Immobilienbüro RÄTTIG

Attraktiv, hochwertig und großzügig, 3-Zimmer-Wohnung in Sauerlach

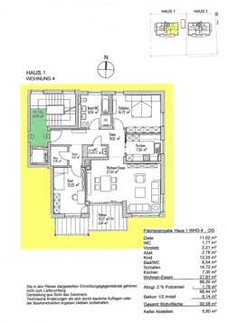
  • Wohnung 4 Hs. 1, OG

<< Zurück