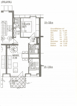
Vom Eingang gleich links gelangt man in die Garderobe und zur separaten Toilette mit Fenster.

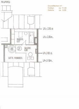
Über die runde Wendeltreppe kommt man auf die Galerie und zum Zimmer im Dachgeschoss. Für dieses Zimmer wird zwar nur eine Wohnfläche von 6,87 m² ausgewiesen, es ist aber - mit einer Grundfläche von gut 11 m², einer Höhe im Kniestock von 0,72 Metern und Dank der steilen Dachneigung, einer Raumhöhe von bis zu 2,89 Metern - gut als Zimmer nutzbar. Zusätzlichen, attraktiven Gestaltungsraum bietet natürlich die Galerie, die im hinteren Bereich ausgehend von einer Raumhöhe von ebenfalls 2,89 Metern auf ca. 0,20 Meter abfällt.

Zur Wohnung gehört ein vollwertiger Tiefgaragen-Stellplatz (kein Duplex), den Sie bequem, trockenen Fußes direkt über das Treppenhaus erreichen.
Dieses Objekt wurde in solider Ziegel-Bauweise erstellt. So wurden die Außenwände mit 36,5 cm starken, kleinformatigen Uniporziegeln, die Wohnungstrenn- u. Teppenhaus-Wände mit 24 cm Schallschutz-Ziegeln und die nicht-tragenden Innenwände mit Hochlochziegeln gemauert. " />

Grundrisse - Immobilienbüro RÄTTIG

Attraktive 2,5-Zimmer-Galeriewohnung in angenehm ruhiger Wohnlage in Dachau.

  • 2. Obergeschoss
  • Galerie u. Dachzimmer

<< Zurück