Grundrisse - Immobilienbüro RÄTTIG

- Bestlage Neubiberg - Schickes, top-renoviertes Reihenhaus

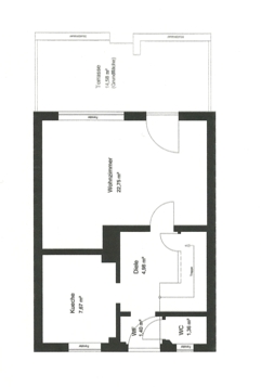
  • Grundriss EG
  • Grundriss 1. OG
  • Grundriss DG
  • Grundriss KG

<< Zurück