Grundrisse - Immobilienbüro RÄTTIG

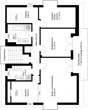
- Exklusives Wohnen! - Lichtdurchflutete Dachterrassen-Wohnung mit vielen Extra ...

  • Grundriss

<< Zurück